Built
1974
Length
48.5 m
Built
1974
Length
48.5 m
Ishikawajima-Harima Western Isles Overview
14
guest
7
cabin
9
crew
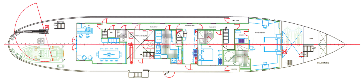
Motor yacht Ishikawajima-Harima Western Isles 48.5 length metres The shipyard Ishikawajima-Harima rolled off the slipway 1974 in year. The yacht can accommodate up to 14 guests and is maintained and operated by 9 crew members. The shipyard itself was responsible for her exterior and interior design.
Characteristics of the superyacht Western Isles
Main Features
Length, m
48.5
Beam, m
7.8
Draft, m
3
Tonnage and capacity
Displacement, t
360
Hull material
Steel
Superstructure material
Aluminum
Passengers and crew
Max people
14
Cabins
7
Crew
9
Engines & Performance
Engines
1 x Daihatsu 6PSHTCM-26E 750 hp
Maximum speed, kt
12
Cruising speed, kn
9
Range, nm
8000
Manufacturer and designers
Classification and flag
Name
Western Isles
Type
Motor
Previous names
Shunpu Maru



















